Navigation
Vorbereitung
Barrierefreies Bauen
Bestand
Aufstockung
Anbau/Umbau
Fassadengestaltung
Neubau
Einzelleistungen
Baubetreuung
Gutachten
Bauberatung
Bestandsaufnahme
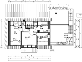
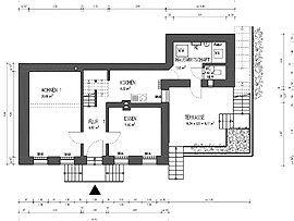
Leistungen » Einzelleistungen » Bestandsaufnahme
Von Ihrem Bestandsobjekt werden bei Bedarf neue oder ergänzende Pläne erstellt. Das kann sinnvoll beim Verkauf Ihrer Immobilie sein, ist aber auch bei Umbaumaßnahmen eine Grundvoraussetzung.
Home
|
Impressum
|
Datenschutzerklärung